Originating from the development of MCC’s Master Plan and the College’s desire to provide safe, welcoming housing, the goal was clear: create a place that supports academic focus while also fostering connection, independence, and a strong sense of community. At the heart of that vision is an intentional framework designed to shape how students live, move, and interact every day.
Rather than defaulting to a conventional dormitory layout, our team, along with Progressive Companies, explored a wide range of student housing models. Each offered lessons, but what resonated most was a hybrid, village-style approach that balances privacy and community in a way that feels both natural and supportive.
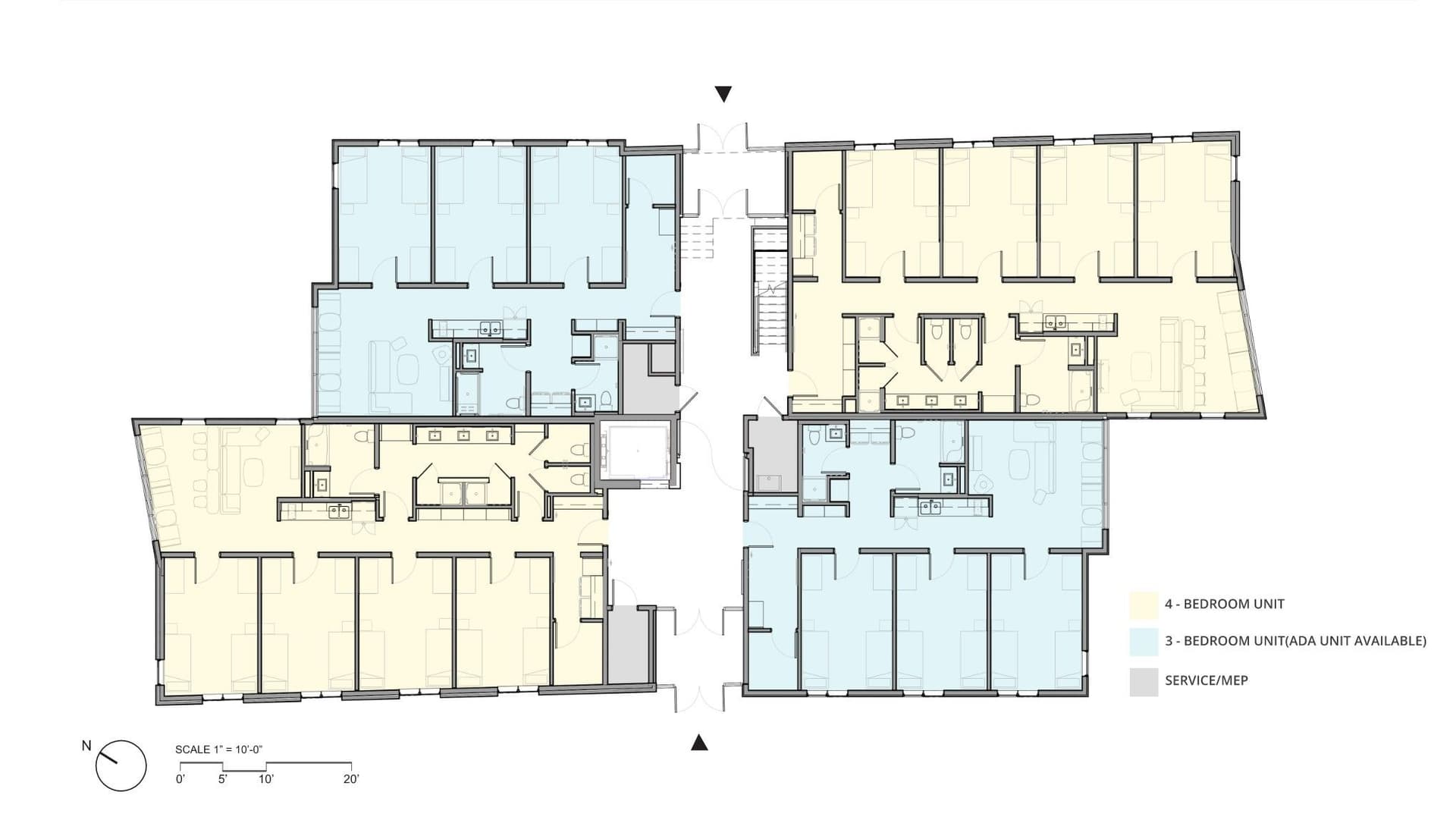
This model groups students into villages of six to eight residents allowing each unit to function independently, with shared amenities that encourage connection. It’s a format that supports group living while still offering comfort, dignity, and choice, striking a thoughtful balance between cost, culture, and long-term flexibility.
Early conceptual planning implemented journey-mapping to understand how students move through their day. We studied campus adjacencies and existing amenities to understand where housing could best support what already exists on campus. This research helped determine which amenities needed to live directly within the building to create a comfortable, self-sustaining environment for students, many of whom will be living on their own for the first time.

Each village is designed to be comfortable, flexible, and intuitive, more like a home than a traditional residence hall. At the center of each unit, shared living and dining spaces create a gathering place for cooking, relaxing, and spending time together. Kitchenettes are equipped with full-sized refrigerators and freezers, cooktops, and ample storage to support everyday routines and shared meals.
The floor plan thoughtfully balances communal and private bathrooms, with in-unit laundry and built-in storage for coats, shoes, and personal items seamlessly integrated to keep spaces organized and uncluttered. Expansive natural light fills each unit, while flexible furnishings allow students to adapt and personalize their spaces by encouraging movement, comfort, and a genuine sense of ownership.

Instead of functioning as simple pass-throughs, the four residential nodes extend from a shared central core, creating an efficient layout that naturally brings students together. Each floor has an accessible living unit and all of the building’s units are accessible-ready, meaning they can be easily modified to become fully accessible should the need arise. The College chose to provide an abundance of accessible spaces and a full-size passenger elevator to support inclusion and wellness for student residents. Everyone can visit friends or find the just-right space to study, regardless of ability. The circulation spaces linking the units were designed as informal commons that act as a place to pause, study, or strike up a conversation. Thoughtful attention to daylight, furnishings, and scale helps these areas feel comfortable and inviting, extending the sense of community beyond individual units and reinforcing a shared living experience throughout the building.

The building’s relationship to its site plays a key role in the student experience. Positioned parallel to the main campus drive, this will be the most visible and prominent structure, marking a new campus entry experience. Central core spaces face east and west, offering views across campus and into the wooded landscape and adjacent trail system. Positioned near the Student Activities Building with access to food, fitness, gathering spaces and adjacent green space, the building is woven directly into daily campus life.
By placing the building at the edge of the woods and wetlands, the design brings a more immersive natural experience into students’ everyday routines. The primary existing pedestrian axis was intentionally utilized to strengthen the connection between residential and academic spaces, encouraging students to move along the wooded edge as they transition between living and learning. The site extends southward to allow flexibility for future campus growth.

As construction continues, MCC Housing is steadily taking shape and is on track to welcome its first students in fall of 2026. We’re excited to see these spaces come to life and begin supporting the next generation of MCC students. Follow along as the project progresses, and visit our website to learn more about the design and planning behind Montcalm Community College Student Housing.
